PT
|
EN
Conceito
Plantas
Localização
Contactos
Download Brochura
PT
EN
Plantas
UMA NOVA FORMA DE TRABALHAR E DE ESTAR
Um empreendimento eficiente, versátil, atual, verde, onde tudo funciona em harmonia.
Piso
Interior
m
2
Exterior
m
2
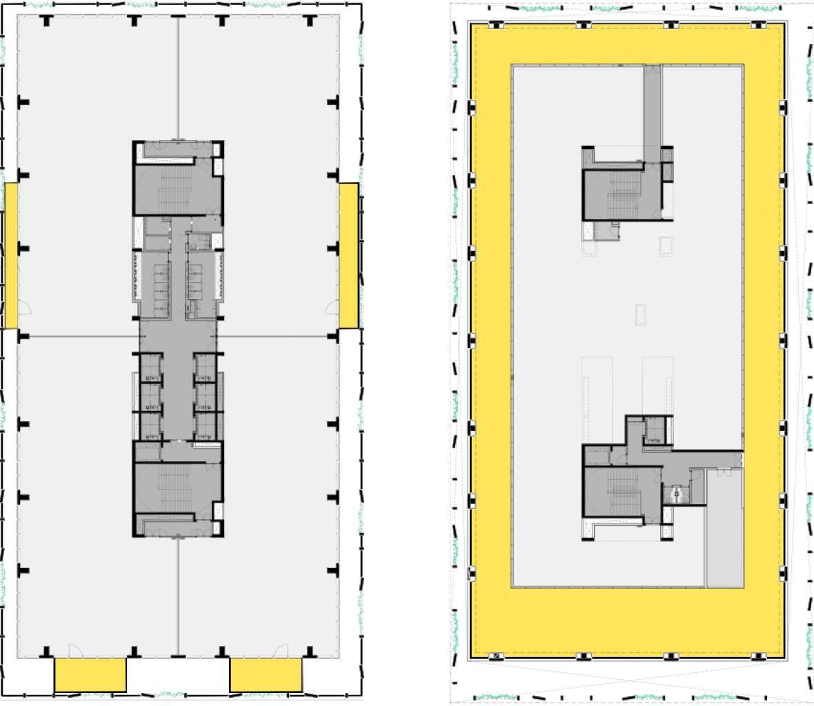
1º
1.327
-
2º . 4º . 6º . 8º
2.230
476
3º . 5º . 7º . 9º
2.230
100
Pisos
Ímpares
Pisos
Pares
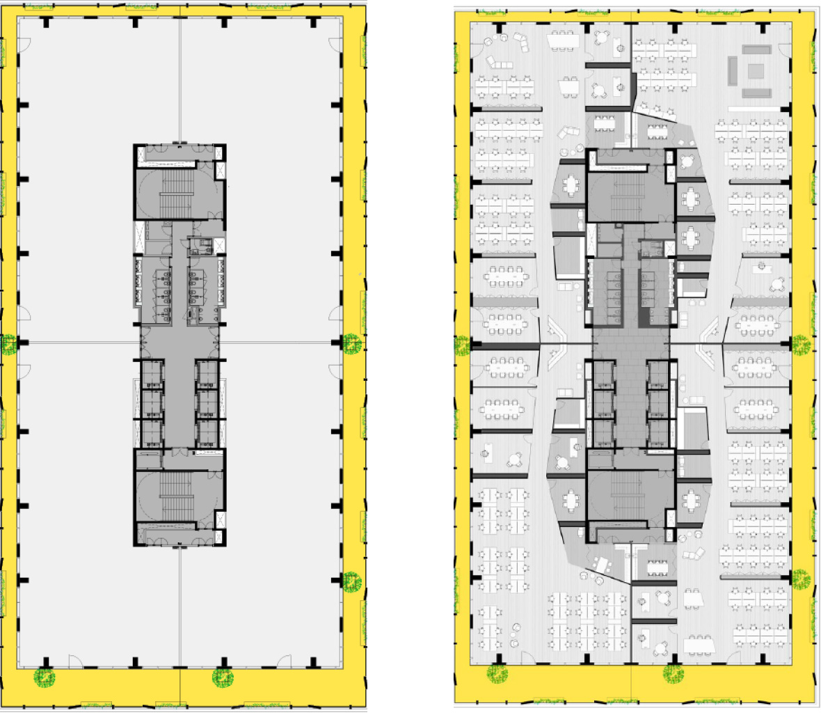
Plant
Tipologia
Pisos Pares
Pisos
2º
4º
6º
8º
Área Exterior
476
m
2
Área Interior
2230
m
2
Pisos Ímpares
Pisos
3º
5º
7º
9º
Área Exterior
100
m
2
Área Interior
2230
m
2
PISO
Rooftop
Área Total
882
m
2
* Disposição meramente exemplificativa, o espaço é totalmente customizado.
Terraço
Pisos Pares
Pisos Ímpares